
// Офис «DHL» в БЦ «Кулон»
Сделали проект для ДХЛ по обновлению существующего офиса.
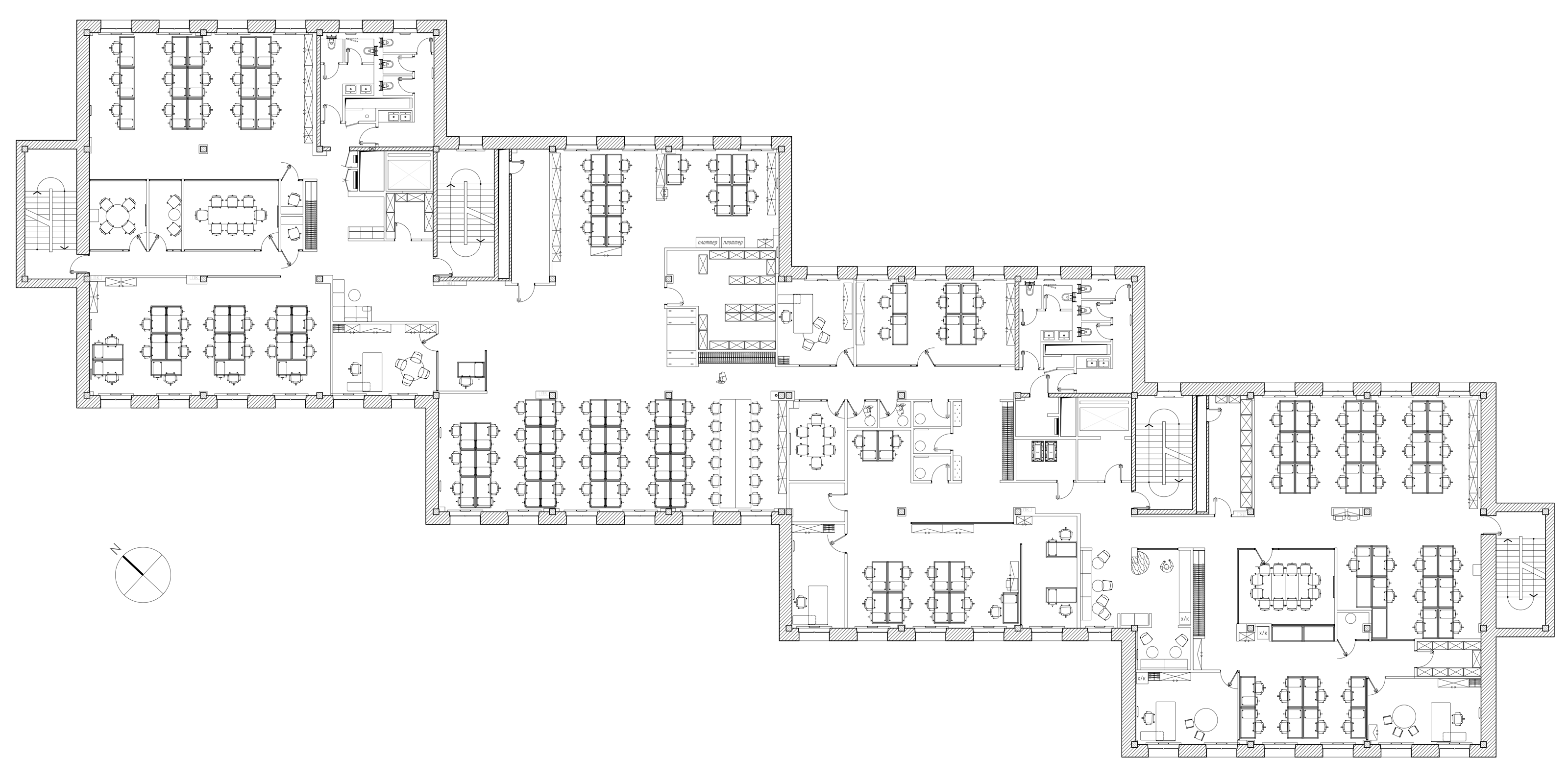
Мы выиграли тендер на проектирование обновления для части существующего офиса ДХЛ. Последний раз ремонт в офисе делали в 2004 году. Мы разработали обновленную планировку и новый дизайн для помещений 4-го и части 1-го этажей.







// Планы


// Что мы сделали
+ Сделали планировки
+ Придумали концепцию
+ Сделали визуализации
+ Разработали архитектурные и инженерные чертежи для подрядчика
+ Выбрали материалы, сантехоборудование
+ Помогли выбрать мебель и освещение
+ Выполнили авторский надзор
// Команда
ГАП          - Андрей Гаврилов
Архитектор   - Виктория Погосян
Инженер ОВК  - Анастасия Одинцова
Инженер ЭОМ  - Виктор Полферов
Визуализатор - Георгий Кулаков
Проект СС    - ООО «ЛАН-коннект»
 
Авторизация