
// Офис «Хемпель» в БЦ «Алкон»
Сделали проект нового офиса для компании Хемпель.




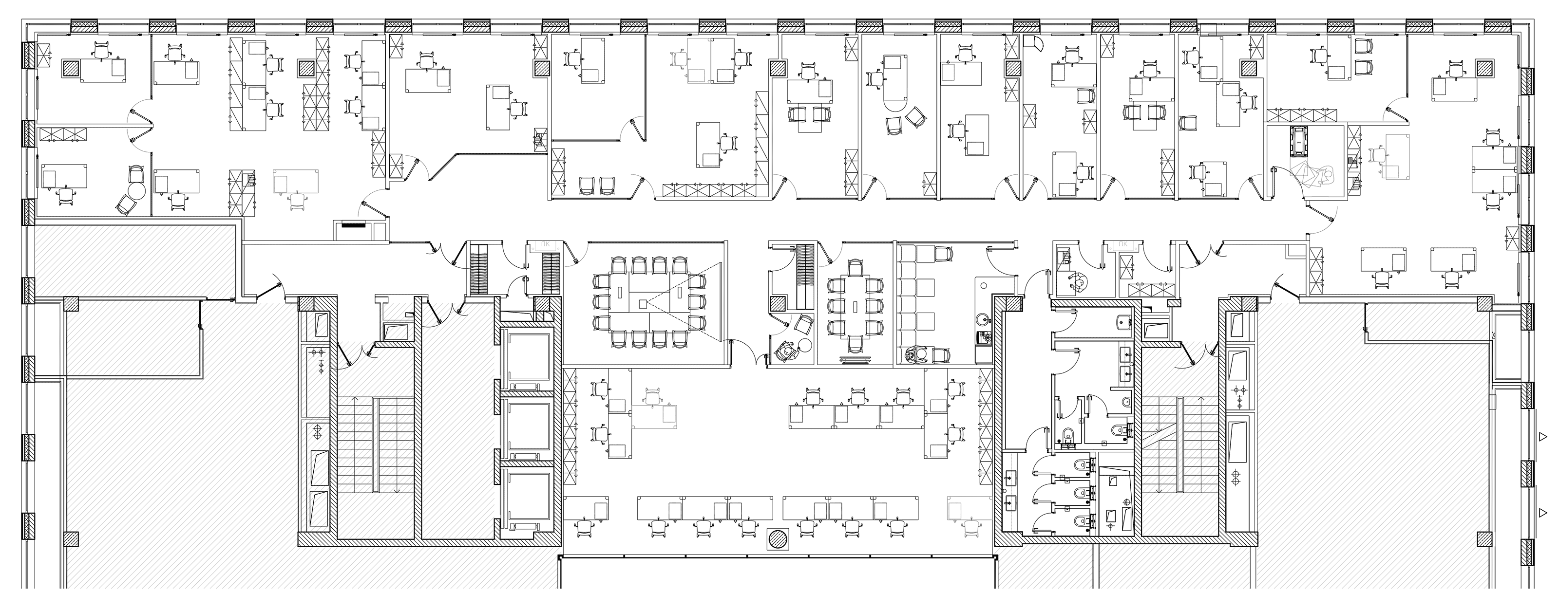
// Что мы сделали
+ Сделали планировки
+ Придумали концепцию
+ Сделали визуализации
+ Разработали архитектурные и инженерные чертежи для подрядчика
+ Выбрали материалы, сантехоборудование
+ Помогли выбрать мебель и освещение
+ Выполнили авторский надзор
// Команда
Архитектор - Андрей Гаврилов
Инженер ОВК - Анастасия Одинцова
Инженер ЭОМ - Виктор Полферов
Визуализатор - Георгий Кулаков
Authorization