// Офис «Сольвей» в БЦ «Алкон»
Мы спроектировали и помогли построить
новый офис для компании «Сольвей»
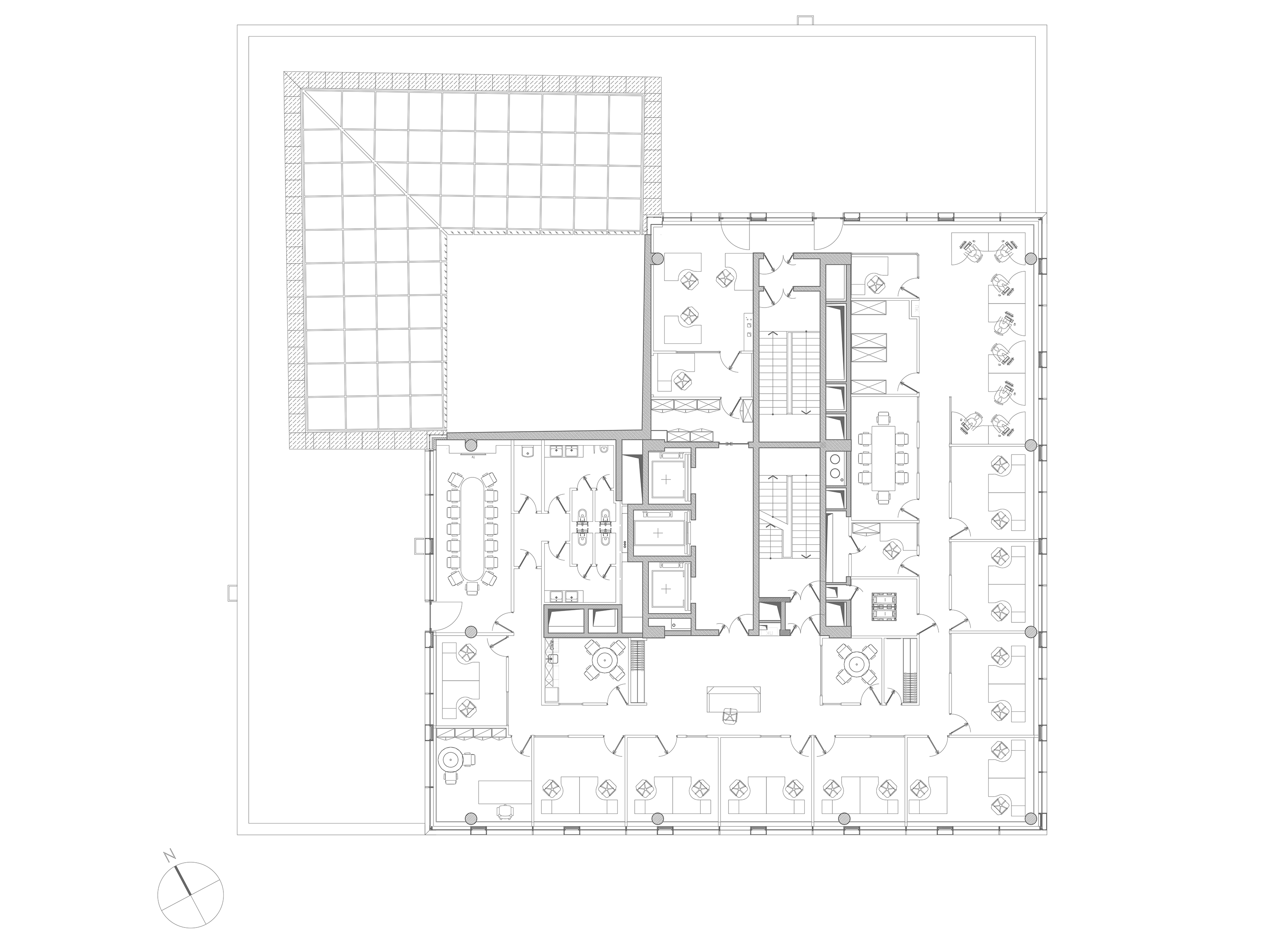
// ЧЕРТЕЖИ
// ЧТО МЫ СДЕЛАЛИ
+ Сделали планировку
+ Придумали концепцию
+ Сделали визуализации
+ Разработали архитектурные и инженерные чертежи для подрядчика
+ Выбрали материалы, сантехоборудование
+ Разработали нестандартную и встроенную мебель
+ Помогли выбрать освещение
+ Выполнили авторский надзор
// В ГЛАВНЫХ РОЛЯХ
| Автор проекта, ГАП | Андрей Гаврилов |
| Инженер ОВК | Анастасия Одинцова |
| Инженер ЭОМ | Виктор Полферов |
| 3D-художник | Георгий Кулаков |
| Пожарная безопасность и СКС | ЛАН коннект |
| Генподрядчик | DWG |
Authorization