
// Офис «Туту.ру»
// 2016
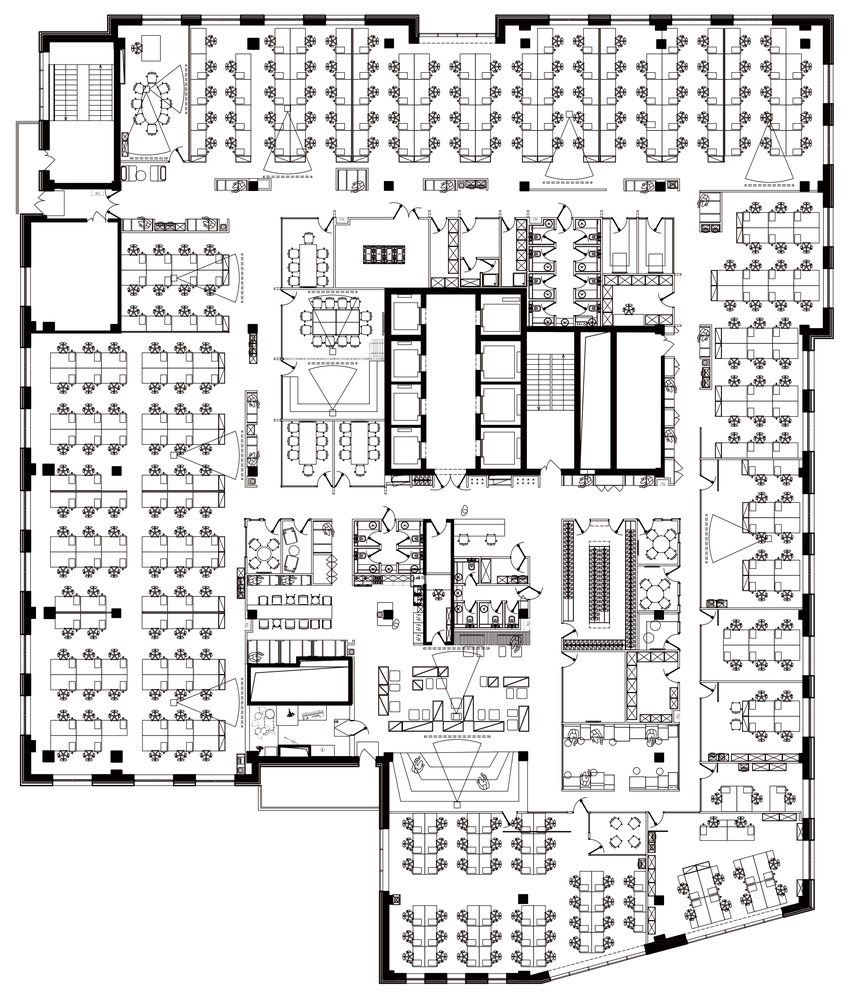
Спроектировали и помогли построить еще один этаж офиса «Туту.ру» на 13 этаже БЦ «Ньютон Плаза».




// Чертежи

// Что мы сделали
+ Сделали планировки
+ Придумали концепцию
+ Сделали визуализации
+ Подобрали освещение и мебель
+ Разработали архитектурные рабочие чертежи
+ Разработали рабочую документацию на инженерные системы
+ Разработали рабочую документацию на слаботочные системы
+ Разработали нестандартные изделия
+ Выполнили авторский надзор
// Команда
Автор и архитектор - Наталия Тиняева
ГИП - Андрей Гаврилов
Инженер ОВК - Анастасия Одинцова
Инженер ЭОМ - Виктор Полферов
Визуализатор - Георгий Кулаков
Слаботочные системы - ЛАН Коннект
Authorization