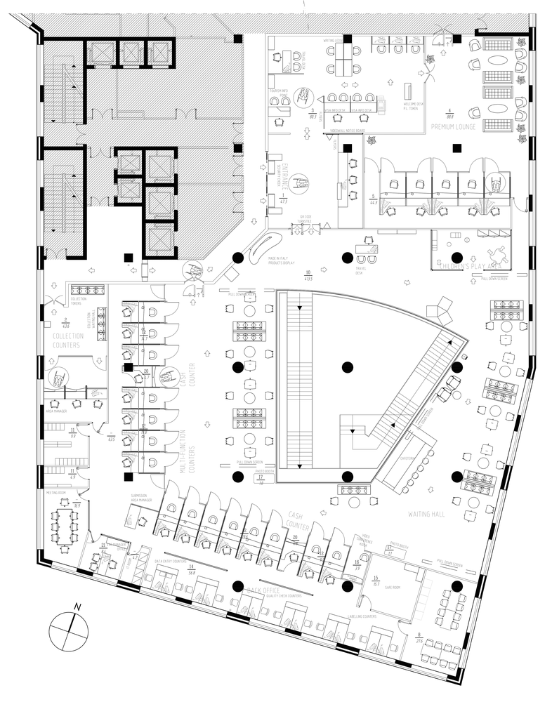
// Визовые центры «VFS Global»

 

 

Сделали тест-фиты и визуализации
для будущих визовых центров Италии в Москве

// ЧЕРТЕЖИ

// ЧТО МЫ СДЕЛАЛИ

+ Сделали планировки
+ Сделали визуализации
 

// В ГЛАВНЫХ РОЛЯХ

Архитектор   - Андрей Гаврилов
Визуализатор - Георгий Кулаков

Authorization