Классическая пиццерия
с открытой кухней
в духе бистро.
К нам обратились с просьбой выполнить проект небольшой пиццерии в центрее Москвы на Новокузнецкой улице.
Помещение было нам знаокомо, мы уже выполняли для него проект и тоже пиццерии. Но если предыдущий арендатор планировал сделать пиццерию фаст-фуд, то новые арендаторы пожелали сделать стильный семейный ресторан комфортной еды с уклоном в стиль французского бистро.
Нам были предоставлены референсы, на осовновании которых мы предложили первый вариант дизайна.
Мы хотели сделать светлый и воздушный зал с курортными мотивами - плетеным ротангом, зеленью, имитацией старых стен.
К сожалению, первый вариант заказчику категорически не понравился, под тем предлогом, что все сильно напоминает фаст-фуд.?
Необходимо было сделать интерьер более темным, камерным.
Также заказчик попросил применить мебель и некоторые изделия со своего склада.
Основным элементом оставили длинный диван.
Изменили отделку стен на более темный микробетон с "прожилками" кирпичных стен.
Поменяли цвет открытого потолка с белого на черный, также затемнили всю цветовую гамму.
Вместо этажерок с растениями предложили использовать корпуса от винтажных напольных часов.
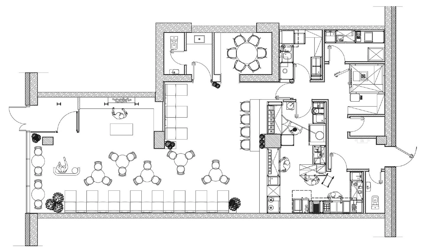
// ПЛАН

// ЧТО МЫ СДЕЛАЛИ
+ Новую планировку помещений
+ Придумали дизайн
+ Сделали визуализации
+ Разработали архитектурную рабочую документацию
+ Разработали чертежи нестандартных изделий
+ Подобрали мебель, декор, озеленение.
// В ГЛАВНЫХ РОЛЯХ
| Андрей Гаврилов | автор проекта, ГАП |
| Виктория Погосян | архитекор |
| Георгий Кулаков | 3D-визуализатор |
// СПЕЦИФИКАЦИЯ
| Мебель | LOFT DESIGNE |
| Напольные отделочные материалы | Equipe Ceramicas CRETO NS Mosaic ESTIMA |
| Настенные отделочные материалы | Декоративная штукатурка EQUIPE Керама Марацци |
| Светильники |
Arlight |
Authorization