// Кафе-пловная «Пловный Аул» на Новокузнецкой

Спроектировали
микрокафе-пловную
в центре Москвы

Нас пригласили придумать концепцию и спроектировать маленькое кафе-пловную.

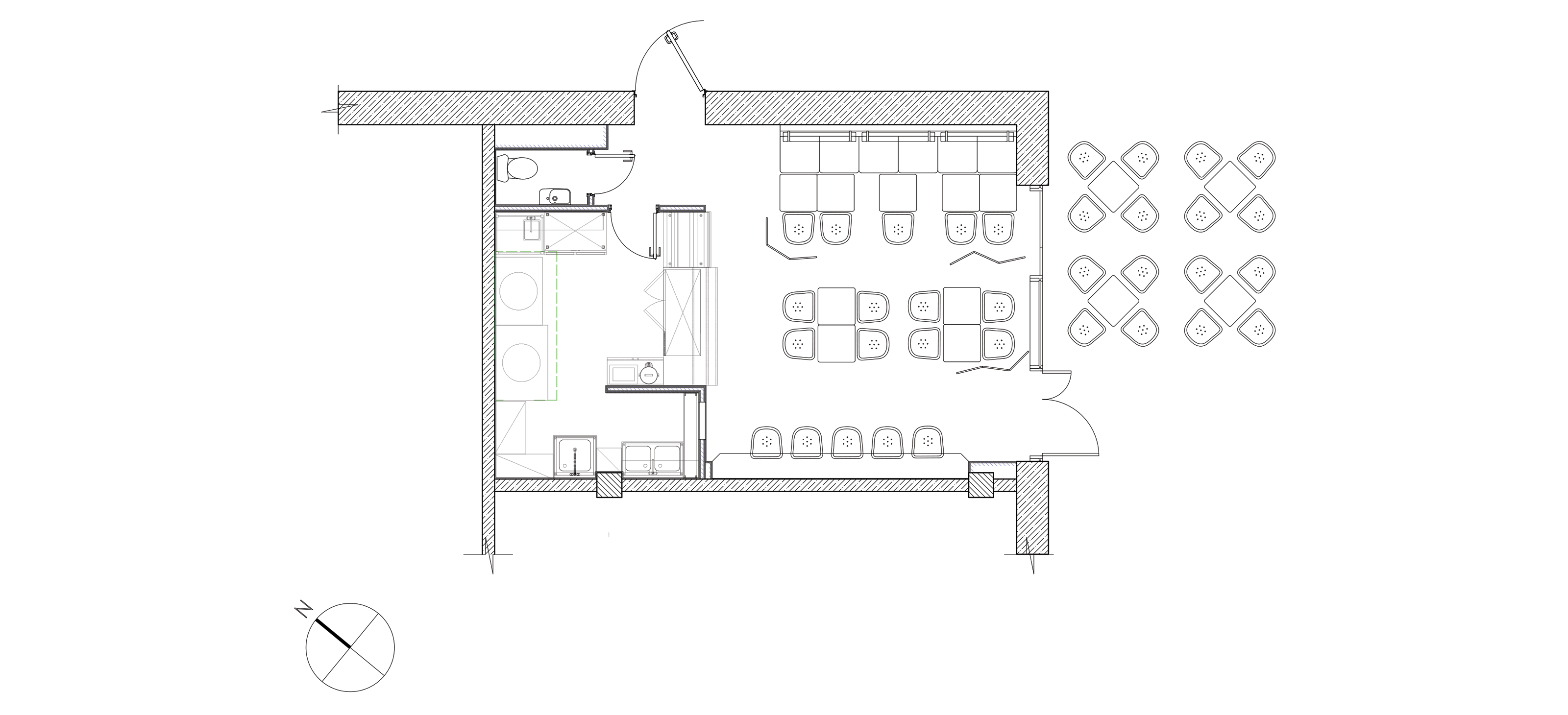
Решили "пристроить" современный минималистичный зал к трададиционно оформленной открытой кухне. 

Основные цвета - золото и синий. Добавили немного натурального дерева. Немного, чтобы не скатиться в деревенскость. Все остальное - бетон, кирипич, оттенки серого.

Светильники в виде перевернутых казанов - идея заказчика.

 

 

// Реализация

 

// ПЛАН

 

// ЧТО МЫ СДЕЛАЛИ

+ Придумали концепцию
+ Сделали визуализации
+ Разработали архитектурные чертежи для подрядчика
+ Подобрали светильники
+ Разработали чертежи нестандартной мебели
 

// В ГЛАВНЫХ РОЛЯХ

Андрей Гаврилов автор проекта, ГАП, ГИП
Георгий Кулаков 3D-визуализатор

Authorization