// Ресторан «Таверна» на Белорусской
Спроектировали ресторан «Таверна» на Белой Площади.




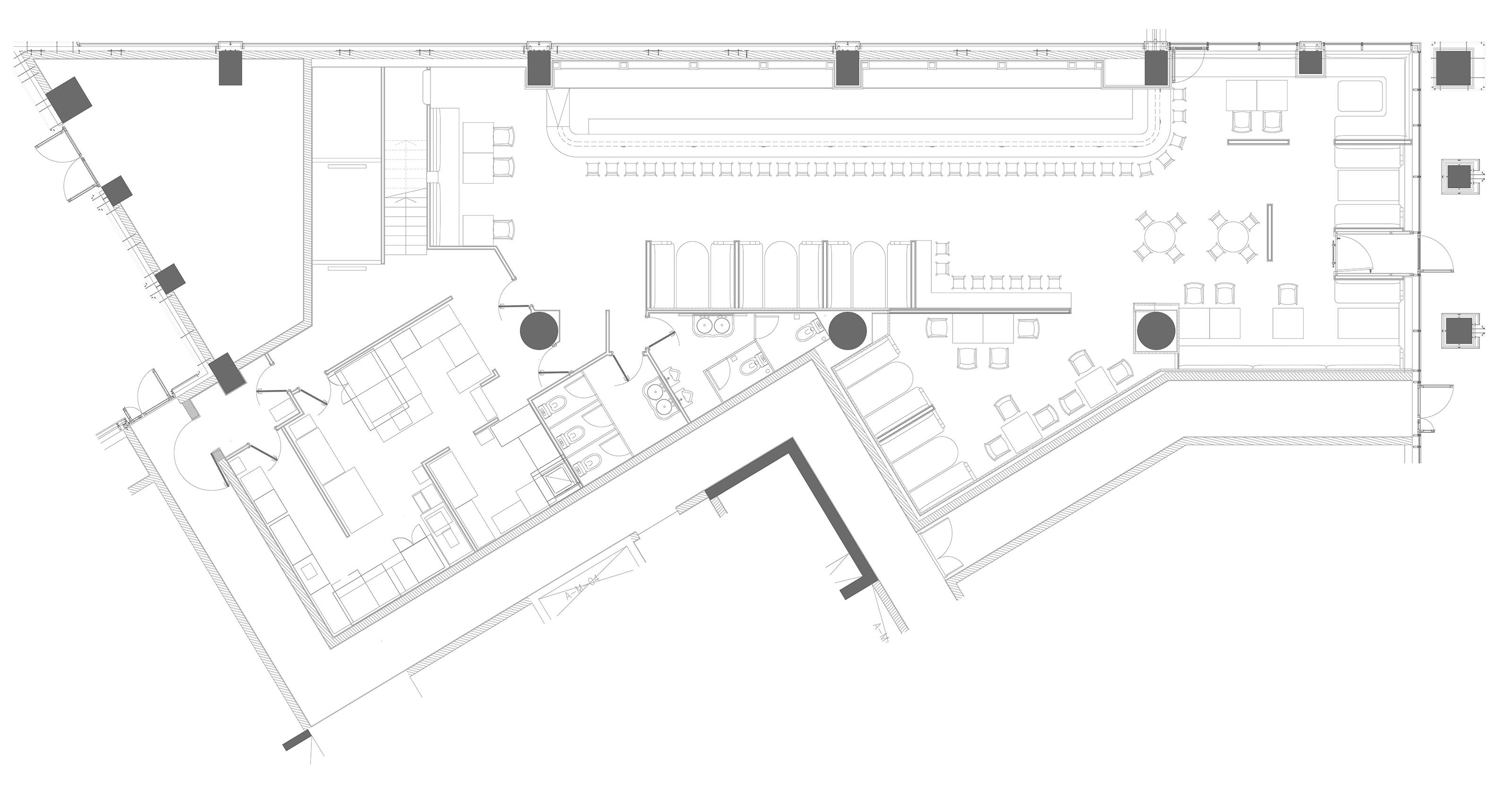
// Чертежи

// Что мы сделали
+ Придумали концепцию
+ Сделали визуализации
+ Разработали архитектурные чертежи для подрядчика
+ Подобрали светильники
+ Разработали чертежи всей нестандартной мебели
// Команда
Автор концепции, Архитектор: Андрей Гаврилов
3D-дизайнер: Георгий Кулаков
Authorization