// КЕЛЬВИН КЛЯЙН В ТЦ «МЕГА БЕЛАЯ ДАЧА»

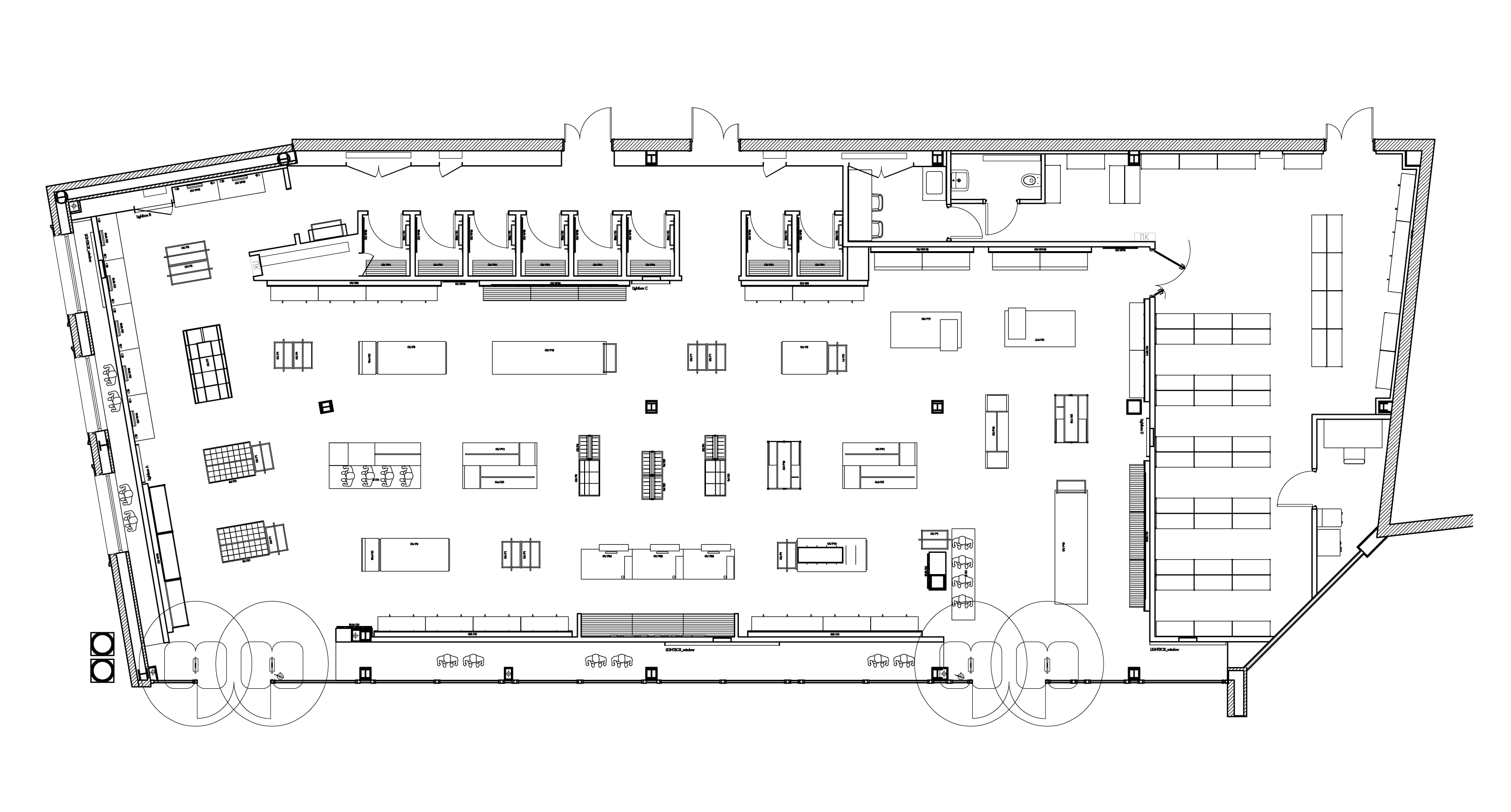
// ЧЕРТЕЖИ

// ЧТО МЫ СДЕЛАЛИ

⚡ Рабочая документация архитекурного раздела
⚡ Рабочая документация инженерных разделов
⚡ Согласование с Арендодателем

// В ГЛАВНЫХ РОЛЯХ

Архитектор и ГИП Андрей Гаврилов
Инженер ОВК Анастасия Одинцова
Инженер ЭОМ Виктор Полферов

Authorization